Aménagement intérieur d’un pool house aux Arcs-sur-Argens dans le Var
PAR QUI ?
Claire, architecte d’intérieur HOMER® dans le Var
OÙ ?
Les Arcs-sur-Argens – Var (83)
POUR QUI ?
Une maison de famille pour accueillir enfants, petits-enfants, amis ou locataires
OBJECTIFS
Moderniser un pool house pour le rendre plus fonctionnel et l’utiliser ponctuellement en studio
MOMENT DE VIE
Accueillir des invités hors de l’habitation principale
Logement saisonnier
STYLE
Terre cuite, terracotta, matières naturelles
SUPERFICIE
18 m²
BUDGET
35 000 €
Vous avez un projet pour votre intérieur ? Faites appel à un HOMER® un architecte d’intérieur spécialiste de l’optimisation de l’espace de l’habitat !
Vous rêvez de devenir votre propre architecte d’intérieur ? Rejoignez l’Atelier HOME Découverte et concrétisez votre projet !
Comment aménager un pool house pour qu’il soit à la fois plus fonctionnel et utilisable ponctuellement en studio ? Aux Arcs-sur-Argens dans le Var, Claire — architecte d’intérieur HOMER® — a modernisé cet espace secondaire accolé à la piscine pour en faire un lieu traversant, lumineux et polyvalent capable d’héberger famille, amis ou vacanciers de passage, tout en conservant sa fonction de pièce de détente et de convivialité au bord de l’eau.
Moderniser un pool house pour accueillir, partager… et s’isoler au calme
Nichée au cœur des vignes, cette maison familiale des Arcs-sur-Argens abrite un pool house typique du Sud : un espace ombragé utilisé l’été pour se rafraîchir, se reposer ou partager un apéritif après la baignade. Les propriétaires souhaitaient aller plus loin, en transformant ce lieu secondaire en un petit studio indépendant, utilisable aussi bien par leurs proches que, ponctuellement, par des vacanciers de passage.
Leur objectif : faire tenir l’essentiel dans 18 m², sans renoncer ni au confort ni à la convivialité. Cuisine, salle d’eau, coin nuit, rangements… chaque usage devait trouver sa place, sans alourdir l’espace ni nuire à la fluidité. Ils tenaient également à préserver le caractère du lieu : son ouverture sur le jardin, son ambiance simple, son rôle de pièce de vie au bord de la piscine.
Claire, architecte d’intérieur HOMER®, a donc repensé l’ensemble du volume avec une approche sobre et fonctionnelle. Elle a réparti les usages avec précision : couchage double discret, coin repas modulable, cuisine d’été compacte, espace détente, salle d’eau optimisée… sans rien céder à la clarté ni à la circulation. Le résultat : un lieu traversant, apaisant et facile à vivre, pensé pour accueillir sans encombrer.
Répondre à plusieurs besoins dans un petit espace tourné vers l’extérieur
Avec seulement 18 m² disponibles, tout l’enjeu résidait dans l’optimisation de l’espace existant. Il fallait composer avec ce volume compact, tout en y intégrant de nouvelles fonctions. Les propriétaires souhaitaient :
- un vrai couchage double utilisable ponctuellement (sans manipulation contraignante) ;
- une cuisine simple et robuste, avec évier, plaques, frigo et rangements ;
- une salle d’eau compacte avec WC, douche, vasque et rangements ;
- un espace repas pouvant accueillir deux personnes, voire plus ponctuellement ;
- des rangements fermés pour le linge, les valises, les affaires personnelles ;
- un mobilier peu fragile, facile d’entretien et adapté à l’humidité ;
- une circulation fluide, y compris lorsque le couchage est utilisé ;
- une ouverture traversante, pour relier piscine et jardin ;
- un lieu agréable à vivre, sans surcharge ni complexité d’usage.
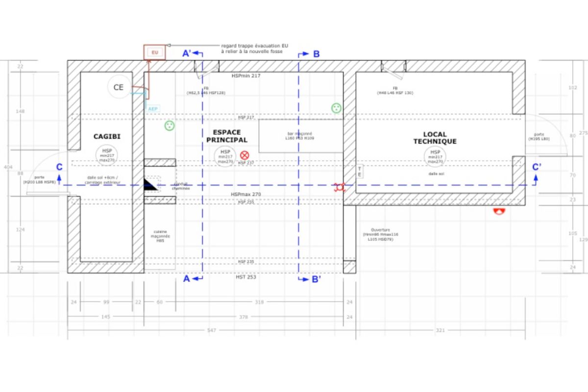
Les solutions concrètes pour l’aménagement intérieur du pool house
Claire a proposé trois avant-projets complets, combinant différentes options de structure et d’usage. Les clients ont retenu plusieurs solutions de l’APS 2, qu’ils ont affinées pour aboutir à une version finale sur mesure. L’aménagement s’est concentré sur le volume existant, avec la création de deux ouvertures pour renforcer la traversée visuelle et relier l’intérieur au jardin.
Un couchage double intégré dans une banquette maçonnée
La grande banquette maçonnée est l’élément central du projet. Profonde et confortable, elle sert d’assise en journée et se transforme en lit double la nuit. Elle intègre :
- un sommier surélevé avec rangement dessous pour le linge ou les valises ;
- deux niches latérales avec prises, faisant office de chevets ;
- un tissu déperlant facile à entretenir.
En réalisant cette banquette en bâti, Claire a pu proposer un aménagement qui répond exactement aux besoins des clients, tout en s’intégrant naturellement à l’espace. Aucun meuble à déplacer, aucune adaptation à improviser : tout est conçu pour durer, s’ajuster et faciliter l’usage au quotidien.
Une cuisine compacte et facile à vivre
Contre l’un des murs, la kitchenette regroupe les fonctions essentielles :
- évier avec égouttoir
- plaque mobile
- frigo sous plan
- étagères ouvertes pour la vaisselle
Le choix des matériaux et des volumes permet de préserver un maximum d’espace libre.
Une salle d’eau optimisée au centimètre près
Dans un tout petit espace, la salle d’eau intègre :
- des WC suspendus avec chauffe-eau dissimulé dans un placard haut ;
- des étagères faible profondeur faisant office de meuble vasque pour garder un maximum d’espace de circulation et disposer d’un recul suffisant ;
- une douche maçonnée avec niche et petit banc en angle ;
- une meurtrière verticale apportant de la lumière naturelle.
Concilier autant de fonctions dans un volume aussi restreint impose une vraie maîtrise technique : comprendre les priorités des occupants, anticiper les usages, traduire les besoins en solutions concrètes. C’est ce que Claire a su faire dans ce projet, en proposant une salle d’eau complète, lumineuse et facile d’entretien, qui s’intègre parfaitement au reste du studio.
Une ouverture traversante vers le jardin
L’ajout d’une porte-fenêtre au sud permet de rendre le lieu traversant et lumineux. La vue s’ouvre sur le verger et les vignes. Une baie coulissante 4 vantaux côté piscine remplace l’ancienne façade. L’ensemble crée une continuité entre l’intérieur et l’extérieur, tout en préservant la simplicité d’usage du lieu.
Un coin repas modulable et un bureau d’appoint discret
Sous la baie vitrée ouest, Claire a intégré une table maçonnée arrondie, servant à la fois de coin repas, de desserte et de bureau ponctuel. Elle ne gêne pas la circulation, tout en offrant un vrai usage au quotidien. Deux chaises pliantes complètent l’ensemble et peuvent être utilisées à l’intérieur comme à l’extérieur.
💡 Ce projet d’aménagement intérieur de pool house montre qu’il est tout à fait possible de concevoir un espace multifonctions — coin détente, lieu de convivialité au bord de la piscine, couchage d’appoint — dans une surface de moins de 20 m². La clé de la réussite : une analyse fine des besoins des clients et des contraintes du lieu, deux fondamentaux de tout projet d’optimisation d’espace 0 regret, au cœur du savoir-faire des architectes d’intérieur HOMER®. On retrouve ici tous les principes d’une architecture d’intérieur pertinente : mobilier sur-mesure, optimisation de chaque centimètre carré, ergonomie maîtrisée, circulation fluide… Tout est pensé pour que cet espace de détente puisse, au besoin, se transformer facilement en studio autonome et simplifier le quotidien de ses occupants.
Version jour
Version nuit
Photos avant
Photos après
© Photos Claire, architecte d’intérieur HOMER®
Claire
Architecte d’intérieur HOMER® dans les Bouches-du-Rhône et le Var
Au sein de son agence, Claire imagine des intérieurs durables, évolutifs et pleins de sens. À la croisée de l’urbanisme et de l’architecture d’intérieur, elle accompagne les familles et les investisseurs dans leurs projets avec une posture résolument tournée vers le conseil et l’aide à la décision. Grâce à la méthode H.O.M.E®, elle conçoit des espaces sur-mesure, pensés pour durer, valoriser le bien et offrir plus de confort au quotidien.

