Aménagement d’un T2 de 40 m² à Grenoble
PAR QUI ?
Émilie, architecte d’intérieur HOMER® – Grenoble
OÙ ?
Grenoble – Isère (38)
POUR QUI ?
Investisseur immobilier
OBJECTIFS
Optimisation du plan promoteur (VEFA) pour un T2 locatif
MOMENT DE VIE
Investissement locatif
STYLE
Sobre, fonctionnel, chaleureux
SUPERFICIE
43 m²
BUDGET
8 000-10 000 €
Vous avez un projet pour votre intérieur ? Faites appel à un HOMER® un architecte d’intérieur spécialiste de l’optimisation de l’espace de l’habitat !
Vous rêvez de devenir votre propre architecte d’intérieur ? Rejoignez l’Atelier HOME Découverte et concrétisez votre projet !
Acheter un appartement sur plan, c’est aussi l’opportunité de le repenser dès le départ. À Grenoble, Émilie, architecte d’intérieur HOMER®, a accompagné une investisseuse dans l’optimisation du plan promoteur d’un T2 de 43 m². Son objectif ? En faire un bien prêt-à-vivre, pensé dans les moindres détails… pour être loué rapidement après livraison.
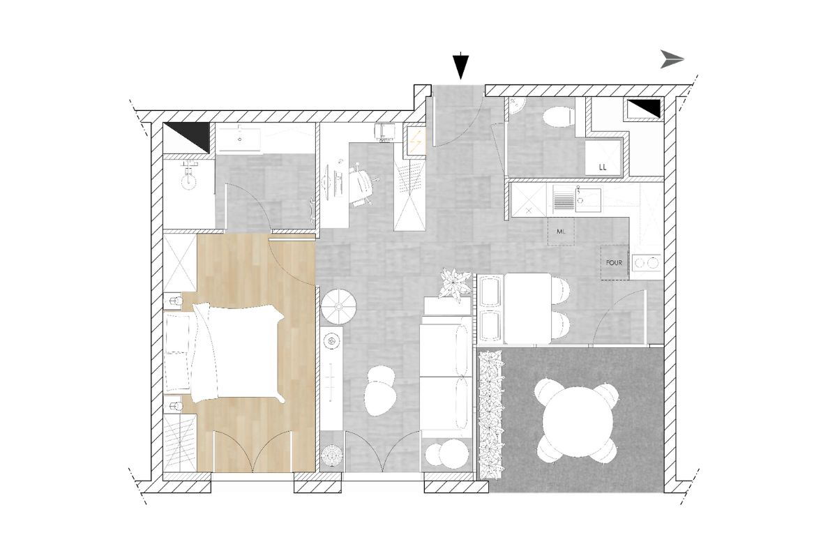
Comment transformer un plan d’appartement T2 de 40 m² en logement locatif clé en main ?
Dans le quartier calme de l’Ile Verte à Grenoble, ce T2 de 43 m² avec jardin est acheté sur plan par Magali. Son objectif est clair : optimiser le plan du promoteur (VEFA) pour répondre aux usages réels des futurs locataires — actifs ou étudiants en télétravail — tout en respectant un budget maîtrisé, sans travaux supplémentaires à prévoir après livraison.
Elle sollicite Émilie, architecte d’intérieur HOMER®, pour résoudre plusieurs faiblesses du plan initial :
- une répartition des surfaces peu équilibrée entre salon et chambre,
- une cuisine étriquée,
- aucun coin bureau prévu,
- des circulations peu lisibles.
Aménagement T2 40 m² : 3 ajustements malins pour un espace mieux pensé
L’objectif du projet : optimiser le plan sans travaux lourds, intégrer des rangements malins, une cuisine fonctionnelle, un coin bureau et valoriser chaque mètre carré. Le tout, dans un budget serré et avec une mise en œuvre rapide. À la demande du client, Émilie propose donc directement un avant-projet détaillé (APD).
Rééquilibrer salon et chambre pour fluidifier les usages
La cloison séparant salon et chambre est déplacée de quelques dizaines de centimètres. Ce léger ajustement change tout : le salon gagne en surface, l’espace devient plus lumineux et plus facile à meubler. Résultat : un équilibre visuel et spatial plus cohérent, qui profite autant au confort qu’à la lisibilité du plan.
Créer un coin bureau sans cloisonner
L’entrée de la salle de bain est désormais accessible depuis la chambre, ce qui libère un pan de mur dans le séjour. Cette nouvelle configuration permet d’aménager un coin bureau fonctionnel, séparé de l’entrée par un placard sur mesure. Résultat : un espace de travail dédié, discret et confortable, parfaitement adapté à une cible locative en télétravail.
Détourner le plan de travail pour gagner du rangement en hauteur
Dans la cuisine, le plan de travail Ikea est prolongé en hauteur pour former des étagères d’angle ouvertes. Placées dans les hauteurs, elles offrent des rangements supplémentaires accessibles, sans alourdir l’espace visuel. Ce choix renforce la fonctionnalité, dans un gabarit de cuisine compact.
💡 En optimisant le plan de cet appartement dès la phase VEFA, Émilie a permis à sa cliente d’aménager un T2 de plus de 40m2 fonctionnel, sobre et déjà prêt à vivre. Le nouveau plan a permis de créer un bien différenciant, sans travaux supplémentaires et facilement mis en œuvre. Une stratégie locative gagnante : l’appartement a trouvé son locatataire avant même sa livraison !
Photos après livraison
Visuels 3D
© Visuels Émilie Cortes, architecte d’intérieur HOMER®
Émilie
Architecte d’intérieur HOMER® dans le Vercors
Émilie accompagne propriétaires et investisseurs dans la transformation de leur bien, avec exigence et clarté. Installée près de Grenoble, elle intervient aussi bien en local qu’à distance, en assurant un pilotage fiable à chaque étape. Spécialiste de l’optimisation de l’espace et du mobilier sur mesure, elle conçoit des intérieurs cohérents, confortables et durables. Grâce à la méthode H.O.M.E®, elle articule rigueur technique, sens du détail et vision stratégique pour révéler le plein potentiel de chaque lieu.

