Aménager un contenair en maison à Sélestat (67)
PAR QUI ?
Caroline, architecte d’intérieur HOMER® dans le Bas-Rhin
OÙ ?
Sélestat (Bas-Rhin)
POUR QUI ?
Famille de 4 personnes
OBJECTIFS
Repenser et optimiser l’espace nuit d’une maison contenair pour répondre aux nouvelles attentes de la famille
MOMENT DE VIE
Les enfants ont grandi
STYLE
Scandinave, cocooning, nature
SUPERFICIE
70m2
BUDGET
10.000 €
Vous avez un projet pour votre intérieur ? Faites appel à un HOMER® un architecte d’intérieur spécialiste de l’optimisation de l’espace de l’habitat !
Vous rêvez de devenir votre propre architecte d’intérieur ? Rejoignez l’Atelier HOME Découverte et concrétisez votre projet !
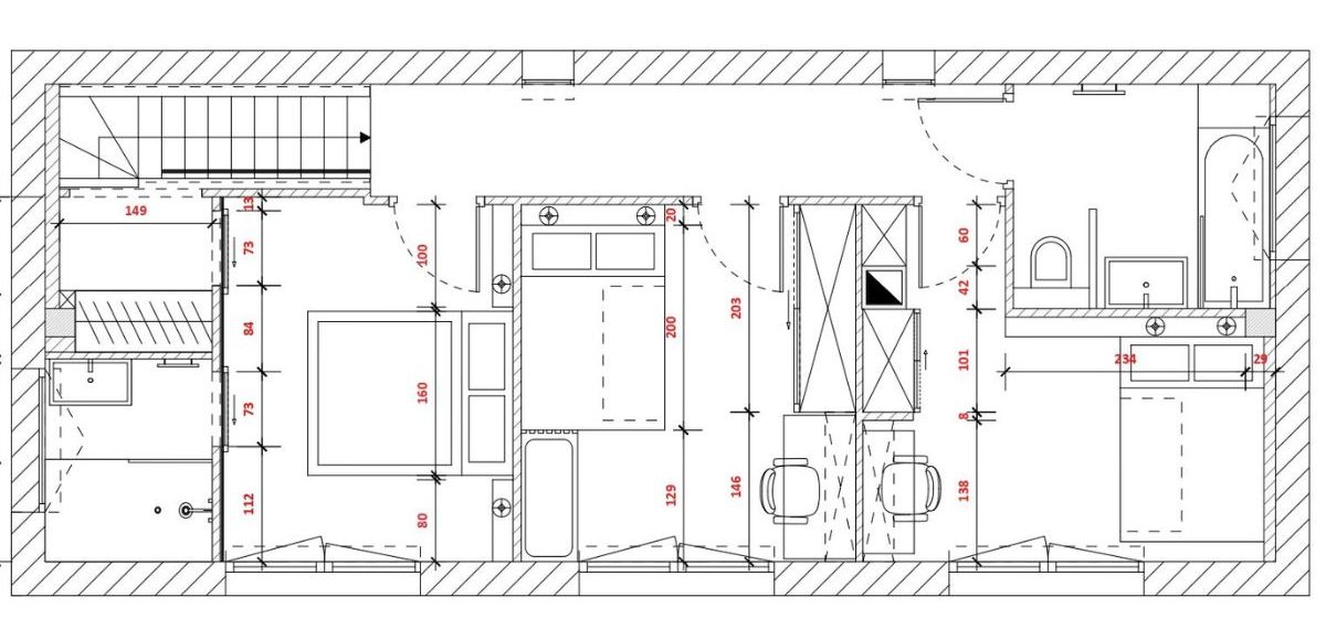
Une maison contenair répondant aux besoins de toute une famille
Néanmoins, au fil des ans, les enfants grandissant, l’espace nuit qui répondait parfaitement aux besoins de la famille lors de la construction de la maison avait besoin d’être ré-optimisé.
Concrètement, il s’agissait de :
- Retravailler la décoration du couloir long et étroit pour le rendre plus chaleureux.
- Prévoir davantage de rangements dans la suite parentale en optimisant la partie dressing/salle d’eau.
- Optimiser les chambres des enfants et rééquilibrer leurs superficies, pour y caser désormais un grand lit, un grand bureau, et toujours plein de rangements !
Les solutions d’optimisation concrètes pour optimiser cette maison contenair
Une fois le relevé de métré effectué et le cahier des charges renseigné, ce n’est pas 1, mais 3 avant-projets sommaires qui ont été présentés à notre famille de Sélestat afin de les aider à se projeter au mieux dans l’espace disponible et leur permettre de faire un choix en toute connaissance de cause.
Voici les solutions retenues par toute la famille :
La décoration du couloir de l’étage
Le couloir de l’étage, de 6,54 m2 était étroit et tout en longueur. L’astuce déco de Caroline a été de faire « oublier » visuellement cette longueur par le biais de matières et de couleurs.
L’optimisation de la suite parentale
Dans la suite parentale, la séparation de l’espace dressing et de la salle d’eau permet au couple de récupérer des cloisons supplémentaires, optimisant ainsi le rangement disponible dans le dressing tout en améliorant l’organisation globale.
L’optimisation des chambres des deux adolescents
Afin d’équilibrer le volume des deux chambres, la cloison de séparation a été légèrement modifiée. Cette nouvelle configuration permet à chacun des 2 enfants d’avoir un grand lit + une armoire + un espace bureau.
L’espace « dressing » de la première chambre est alloué à la seconde chambre afin de l’agrandir. De nouveaux placards ont été créés.
💡 L’utilisation d’un claustra fabriqué avec des tasseaux de bois pour séparer la zone couchage de la zone détente dans la première chambre permet de délimiter les espaces tout en laissant passer la lumière du jour.
© Photos Caroline Binnert, architecte d’intérieur HOMER®
Caroline
Architecte d’intérieur HOMER® dans le Bas-Rhin
Forte de 20 ans d’expérience en Ressources Humaines, Caroline allie sens de l’écoute, gestion de projet et passion pour l’architecture d’intérieur. Spécialisée en optimisation d’espace, elle conçoit des lieux de vie et de travail sur mesure, esthétiques et fonctionnels. Particuliers ou professionnels, elle accompagne chaque client avec des outils précis (plans 2D, visuels 3D, photoréalisme) pour créer des espaces qui leur ressemblent et facilitent leur quotidien.

