Cet article vous présente un cas client de La Table à Dessins, l’agence d’optimisation d’espace de Julie Coulon, une HOMER© formée par Maïlys Dorn à l’Ecole H.O.M.E..
C’est le projet de vos rêves : vous avez trouvé cette ancienne demeure pleine de charme qui ouvre ses portes à votre vie de famille pour les années à venir.
C’est aussi l’histoire de Marie et Olivier, des clients que Julie Coulon a eu le plaisir d’accompagner. Ils venaient de dénicher une jolie maison du XIXe siècle avec un extérieur très sympa, mais un intérieur… dans son jus !
Ils avaient environ 35 ans au moment de l’achat, deux enfants, Marceau et Lubin, et un petit troisième, Romane, qui n’allait pas tarder à arriver. Tout comme leur date d’emménagement, prévue 4 mois plus tard ! Sauf qu’optimiser une vieille maison dans un délai aussi court, c’est un réel challenge. Mais pour eux, c’était évident : il fallait adapter cette belle bâtisse aux besoins de leur tribu tout en gardant son authenticité et en y faisant entrer la lumière.
Entre enveloppe budgétaire à ne pas dépasser et rêves à explorer, avec Julie, ils ont ensemble donné un coup de jeune à leur nouveau nid douillet. Voici les clés de ce projet, pleines d’idées en vue de rénover un intérieur vieillot pour une famille avec un budget limité.
Prioriser les besoins, la première étape afin d’optimiser une vieille maison pour une grande famille, sans craquer son budget
Lorsqu’ils ont contacté Julie, Marie et Olivier avaient deux objectifs pour rénover leur nouvelle maison.
- Réagencer les espaces pour qu’ils s’adaptent à leur famille nombreuse et à nos nouveaux modes de vie.
- Donner du peps à la décoration.
Seulement voilà, la surface n’est pas anodine : cette belle demeure fait 260 m2 ! Et ils savaient qu’ils ne devaient pas dépasser la somme prévue pour les travaux. Les idées fourmillaient dans leur tête, mais pas facile d’être sûr de faire les bons choix… Surtout que dans une maison ancienne, il y a beaucoup à faire !
Évaluer toutes les possibilités en respectant le cahier des charges se révèle parfois un vrai casse-tête, vous n’êtes pas d’accord ? Mais c’est tellement stimulant !
Afin de réussir à rajeunir à temps leur home sweet home, ils ont alors pris une décision : faire appel à une architecte d’intérieur certifiée HOMER©, qui saurait leur proposer un aménagement vraiment pertinent.
J’entends par là un aménagement à la fois fonctionnel et au moins aussi beau que dans leurs rêves 😉. Ils ont contacté Julie COULON et ont opté pour sa prestation Coaching maison. Ils ont d’abord longuement échangé avec elle sur ce qui importe le plus : leurs vrais besoins au quotidien, conscients et inconscients. Leur personnalité, leur dynamique de couple, de parents, de famille, etc. Qu’est-ce qu’ils attendent de leur habitat ? La compréhension de l’humain reste en effet à la base d’un agencement d’intérieur réussi.
L’avant-projet sommaire, une étape incontournable et riche d’idées pour rénover une maison
En parlant avec Julie, ils sont ainsi parvenus à prioriser leurs besoins actuels, tout en anticipant ceux à venir :
- optimiser les chambres pour qu’elles évoluent avec les enfants, qui vont grandir ;
- créer une suite parentale qui allie espace et intimité, le tout avec un maximum de rangements ;
- ajouter une salle de bain à l’étage pour le confort de tous, sans avoir l’impression de perdre des m2 ailleurs ;
- sécuriser les escaliers pour que toute la tribu circule facilement et sans risque ;
- rafraîchir le rez-de-chaussée afin d’y faire entrer la lumière, sans gros travaux pour le moment.
Julie leur a fait quatre propositions d’avant-projet sommaire pour donner une seconde vie à cette ancienne maison grâce à un agencement personnalisé. Chacune respectait tous leurs besoins et leur budget. Cela leur a permis de mieux visualiser leurs idées : ils ont exploré le champ des possibles, ils ont mixé les différentes solutions proposées, sans craindre le faux pas financier. Et ils ont ainsi réussi à définir leur plan idéal, à prioriser les phases de rénovations et les travaux à mener pour donner vie à leur projet. Ca a été un vrai travail de co-construction, en somme !
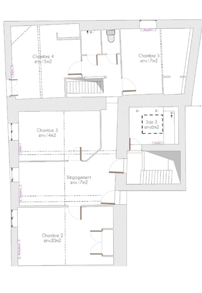
Le plan du R+1 APRES
💡 Avec 65 000 €, ils ont ainsi pu réaliser :
- la réfection des murs, des revêtements de sols et des boiseries dans toute la maison ;
- des travaux pour créer une nouvelle salle de bain ;
- la modernisation de toutes les chambres pour les rendre plus fonctionnelles ;
- un vrai rafraîchissement du rez-de-chaussée avec des moyens limités et donc très peu de travaux ;
- la création d’un agréable espace bureau ;
- la valorisation immédiate de leur nouveau bien immobilier.
Moderniser son intérieur grâce à une belle suite parentale avec dressing
La suite parentale existait déjà dans la maison en l’état. La pièce était grande et donnait le sentiment de mètres carrés un peu « perdus ». Inexploités en fait ! À l’époque, les immenses placards ou armoires en bois trônaient fièrement dans les chambres à coucher. Mais peu optimisés et peu pratiques. Aujourd’hui, ce sont plutôt les dressings qui séduisent. Et c’est ce que voulaient Marie et Olivier : avoir chacun son espace pour ranger ses vêtements, sans que cela n’entache la déco épurée qu’ils projetaient pour cette pièce.
Seulement voilà, avec quatre grands murs, on peut certes créer des rangements, mais ce n’est pas l’idéal pour se changer en toute intimité, ou sans déranger l’autre qui dort. Et cela comptait aux yeux de notre duo. L’idée était donc de profiter de la grandeur de la chambre et la sublimer tout en créant une zone bien à part pour s’habiller, avec des rangements hyper-fonctionnels. Julie a ainsi proposé deux solutions qui ont fait leur petit effet :
- poser une cloison pour délimiter un dressing que l’on ne voit pas depuis l’espace nuit et où chacun a son propre côté ;
- créer une tête de lit avec un coffrage constitué de petites niches qui font office de table de chevet, d’étagère, de touche déco, etc.
La chambre parentale de cette belle demeure a ainsi gardé son cachet : on préserve l’impression de volume en limitant l’encombrement autour du lit et on apporte un coin cosy pour s’habiller. Le coffrage en tête de lit amène de la modernité et la possibilité d’une décoration modulable.
L’optimisation des espaces perdus ou mal agencés, nombreux dans les demeures d’époque
Eh oui, la vraie malédiction des vieilles maisons, ce n’est pas les fantômes, mais plutôt l’agencement parfois trèèès étrange des pièces ! Et dans cette catégorie, vive les angles biscornus. Vous savez, ces coins où on ne sait jamais quoi mettre. Le lit fini de travers, et finalement à part placer une armoire en diagonale qui empiète magistralement l’espace… bref, les angles perdus portent bien leur nom. Et la seule chose qui s’y loge sans peine, c’est surtout la poussière.
Chez Marie et Olivier, cela restait modéré. Néanmoins il semblait important pour Julie d’aborder une astuce pour exploiter les murs en biais : le coffrage. Oui, encore lui, mais cette fois avec un autre objectif : recréer un angle droit que le lit de Marceau pourra facilement épouser. Des espaces de rangement y trouvent place (utiles pour les jouets, etc.). Le tout constitue ainsi un bel angle exploitable tout en remplissant le rôle d’une tête de lit à la fois élégante et très pratique. Les clients ont fondu pour une jolie couleur douce qui se marie à merveille avec le nouveau plancher en bois clair.
Qui dit famille nombreuse, dit création d’une deuxième salle de bain… alors que les clients pensaient qu’il n’y avait pas la place !
Comme tous les espaces nuit sont à l’étage et qu’il s’agit tout de même d’une grande famille (imaginez avec des invités !), une salle de bain supplémentaire était la bienvenue. Le problème, c’est qu’il fallait la créer de zéro. Enfin, presque : il y avait déjà une petite pièce avec un lavabo. Et comme les toilettes adjacentes devaient être conservées, il fallait donc empiéter sur la chambre de l’autre côté. Sauf que celle-ci était déjà très sombre et qu’elle semblait, malgré ses 15 m, étroite…
Julie a donc proposé de revoir les revêtements de cette pièce de nuit et de sabler les poutres apparentes pour gagner en luminosité. Ils ont ainsi pu poser une cloison et soustraire quelques mètres carrés à la chambre de Lubin sans qu’elle ne s’en trouve réduite : l’apport de lumière a vraiment changé la donne. Le plancher clair agrandit la pièce avec les murs blancs. La preuve qu’on peut faire mieux avec plus petit, et surtout qu’il est possible de créer une salle de bain même quand la place semble manquer !
Du côté de la salle de bain justement, la pose d’une douche à l’italienne a facilité l’agencement. La surface dégagée a même permis d’installer une double vasque afin que petits et grands puissent faire leur toilette en même temps. Même si la pièce ne dispose pas de fenêtre, elle reste lumineuse : les murs blancs et le mobilier boisé apportent une clarté. Elle est ainsi très agréable à utiliser, tout en étant hyper-fonctionnelle.
La rénovation d’un vieil escalier, une marche de plus pour rajeunir sa maison
Quel plaisir de jouer dans une immense maison d’époque quand on est enfant et de circuler d’étage en étage en utilisant les différents escaliers ! Julie a conseillé à ses clients de les conserver pour leur praticité quand on vit à cinq sous le même toit.
L’objectif était multiple :
- les sécuriser ;
- conserver le cachet d’origine ;
- faire entrer de la lumière dans la cage d’escaliers ;
- optimiser au maximum l’espace sous les marches.
De l’obscurité à la lumière, la clé pour rénover un intérieur vieillot pour une famille avec un budget limité
▪ Les placards au-dessus de l’évier ont été conservés, mais repeints en blanc pour renforcer la clarté apportée par la fenêtre adjacente. Et avec ce superbe évier d’époque en pierre et la tommette alentour, le résultat est magnifique.
💡 Vous désirez être accompagné pour co-construire votre nid douillet et qu’il reflète au mieux votre personnalité tout en respectant votre budget ? Découvrez la prestation Coaching maison de Julie Coulon et donnez enfin vie à votre projet de rénovation !



Très jolie site, de bonnes idées
Merci
Un grand merci ! Au plaisir d’échanger par mail si vous souhaitez avoir des informations sur nos formations ;-) home(at)optimisemonespace.com
Bonjour Maïlys, merci de partager ce joli projet.
Bravo Julie projet plus que réussir malgré:
Les contraintes d’une vieille bâtisse
Budget restreint
Très heureux choix de peindre la maison en blanc, parfait mariage avec les tonalités de bleu qui tire vers le vert et le gris,soit sur les coffrages soit sur les objets déco et le mobilier. Quelques éléments en noir viennent dynamiser les pièces avec une certaine élégance.
Pour moi le coup de maître reste le sablage de toute la boiserie. La teinte claire du bois apporte de la chaleur, na modernité,la maison respire.
On à envie de se poser.
Je suis conquise.je piquerais bien quelques idées
Encore un grand bravo Julie